Wohnen und mehr
Zur Wohnung gehören zwei KFZ-Stellplätze inkl. Carport sowie ein persönlicher Kellerersatzraum.
Zur Wohnung gehören zwei KFZ-Stellplätze inkl. Carport sowie ein persönlicher Kellerersatzraum.
Übersicht
Kosten und Finanzierung
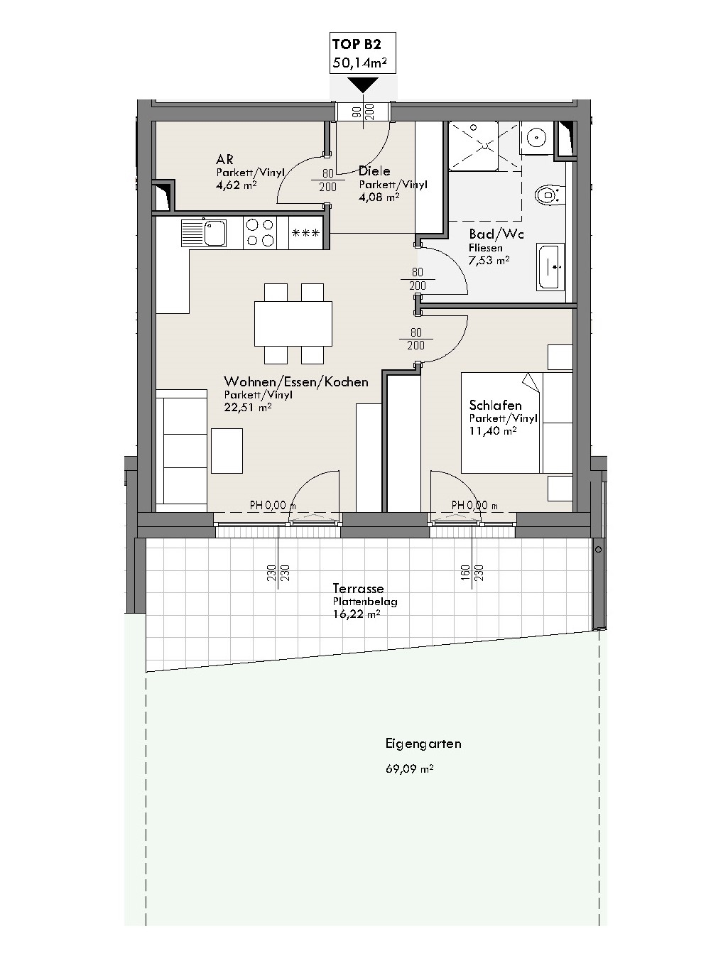
| Top | Geschoß | Räume | Wohnfläche | Balkon / Loggia / (Dach-)Terrasse | Eigengarten | Parkplatz Tiefgarage | Parkplatz im Freien | Kaufpreis |
|---|---|---|---|---|---|---|---|---|
| B2 | EG | 2 | 50 m² | 16 m² | 69 m² | - | 2 | RESERVIERT |
Finanzierungsbeispiel Top B2 € 279.000
Fixpreis |
Baukosten |
€ 279.000 |
Kaufnebenkosten* |
€ 16.134 |
|
- Eigenmittel, idealer Weise |
€ - 60.000 |
|
Gesamtfinanzierungsbedarf |
€ 235.134 |
|
Finanzierungsmöglichkeit |
Bankfinanzierung: 35 Jahre |
|
|
Ihre monatliche Rückzahlungsrate**: € 894,-
|
||
* Kaufnebenkosten:
3,5 % Grunderwerbssteuer und 1,1 % Grundbuch-Eintragungsgebühr (von Kaufpreis & Notarkostenpauschale); € 3.300,- Notarkostenpauschale (inkl. UST; exkl. Barauslagen)
** Finanzierungsbeispiele wurden von unabhängigem Finanzierungsberater (05/25) erstellt. Die Simader GmbH übernimmt keine Gewähr oder Haftung für Zahlen und Berechnungen.
* Finanzierungsbeispiel durch Partnerunternehmen unverbindlich und vorbehaltlich Bonitätsprüfung
Übersicht
Kosten und Finanzierung
| Top | Geschoß | Räume | Wohnfläche | Balkon / Loggia / (Dach-)Terrasse | Eigengarten | Parkplatz Tiefgarage | Parkplatz im Freien | Kaufpreis |
|---|---|---|---|---|---|---|---|---|
| B2 | EG | 2 | 50 m² | 16 m² | 69 m² | - | 2 | RESERVIERT |
Diese Website verwendet Cookies - nähere Informationen dazu und zu Ihren Rechten als Benutzer finden Sie in unserer Datenschutzerklärung am Ende der Seite.
Klicken Sie auf "Ich stimme allen Cookies zu", um alle Cookies (auch von Drittanbietern) zu akzeptieren und direkt unsere Webseite besuchen zu können, oder klicken Sie auf "Cookie-Einstellungen", um Ihre Cookies selbst zu verwalten.
Klicken Sie auf "Ich stimme allen Cookies zu", um alle Cookies (auch von Drittanbietern) zu akzeptieren und direkt unsere Webseite besuchen zu können, oder klicken Sie auf "Cookie-Einstellungen", um Ihre Cookies selbst zu verwalten.
Cookie-Einstellungen
Hier können Sie die Cookie-Einstellungen verschiedener Tools, die auf dieser Domain und ihren Subdomains verwendet werden, einsehen bzw. ändern.
Notwendige Cookies
Funktionelle Cookies
Zielorientierte Cookies